Б 15
Характеристики изделия:
| Параметр | Значение |
|---|---|
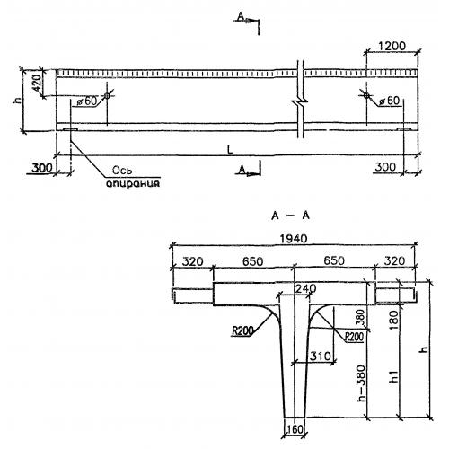
| длина | 15000 мм |
| ширина | 1940 мм |
| высота | 930 мм |
| вес | 15100 кг |
| серия | ТУ 5851-008-01388383-2002 |
Цена:
Рассчитать стоимостьБ 15 Балки пролетного строения по ТУ 5851-008-01388383-2002.
| Параметр | Значение |
|---|---|
| длина | 15000 мм |
| ширина | 1940 мм |
| высота | 930 мм |
| вес | 15100 кг |
| серия | ТУ 5851-008-01388383-2002 |
Б 15 Балки пролетного строения по ТУ 5851-008-01388383-2002.
