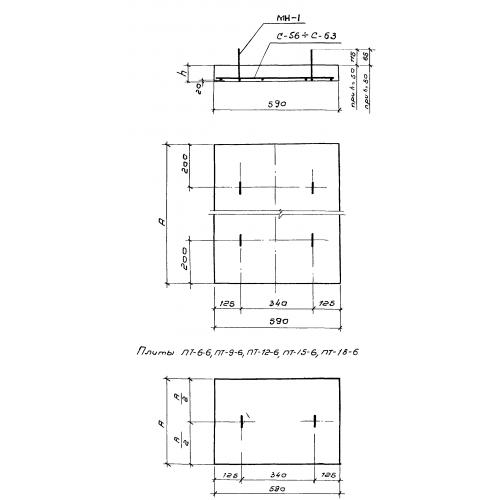
ПТ 9-6 Плиты покрытия лотков

Чертеж изделия:
Характеристики изделия:
ПараметрЗначение
длина590 мм
ширина1150 мм
высота80 мм
масса140 кг
нормативный документСерия 3.900.-3

ПТ 9-6 Плиты покрытия лотков по Серии 3.900.-3.