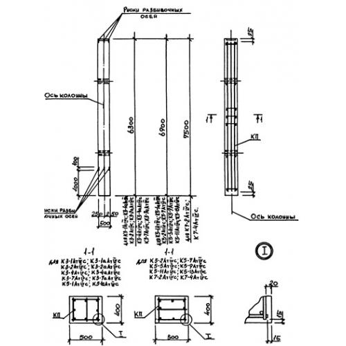
К 8
Характеристики изделия:
| Параметр | Значение |
|---|---|
| длина | 7500 мм |
| ширина | 500 мм |
| высота | 400 мм |
| масса | 3800 кг |
| нормативный документ | Серия 3.015-3/92 |
Цена:
Рассчитать стоимостьК 8 Колонны Серия 3.015-3/92.
| Параметр | Значение |
|---|---|
| длина | 7500 мм |
| ширина | 500 мм |
| высота | 400 мм |
| масса | 3800 кг |
| нормативный документ | Серия 3.015-3/92 |
К 8 Колонны Серия 3.015-3/92.
