К 12
Характеристики изделия:
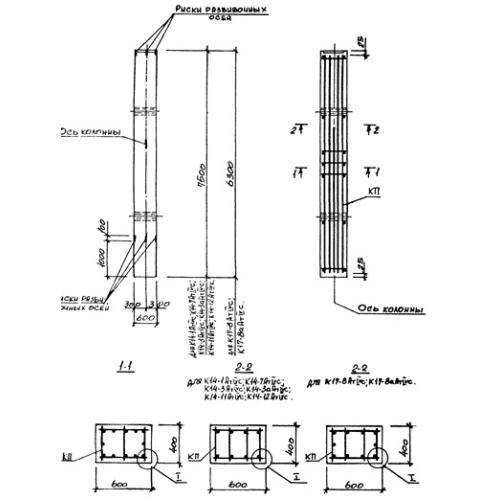
| Параметр | Значение |
|---|---|
| длина | 6300 мм |
| ширина | 600 мм |
| высота | 400 мм |
| масса | 3800 кг |
| нормативный документ | Серия 3.015-3/92 |
Цена:
Рассчитать стоимостьК 12 Колонны Серия 3.015-3/92.
| Параметр | Значение |
|---|---|
| длина | 6300 мм |
| ширина | 600 мм |
| высота | 400 мм |
| масса | 3800 кг |
| нормативный документ | Серия 3.015-3/92 |
К 12 Колонны Серия 3.015-3/92.
