П 24

Чертеж изделия:
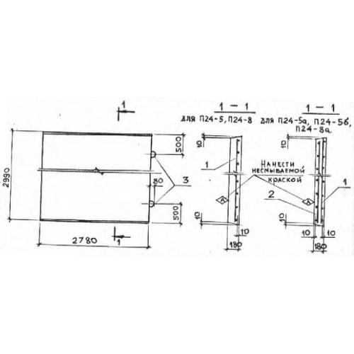
Характеристики изделия:
ПараметрЗначение
длина2990 мм
ширина270 мм
высота180 мм
масса3740 кг
нормативный документСерия 3.006.1-2/82

П 24  Плиты перекрытия лотков Серия 3.006.1-2/82.