ШЛС 30-32
Характеристики изделия:
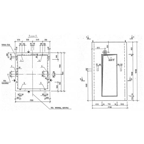
| Параметр | Значение |
|---|---|
| длина | 1780 мм |
| ширина | 1930 мм |
| высота | 2980 мм |
| вес | 4980 кг |
| серия | 1.189.1-8 |
Цена:
Рассчитать стоимостьШЛС 30-32 Блоки лифтовой шахты средние по серии 1.189.1-8.
| Параметр | Значение |
|---|---|
| длина | 1780 мм |
| ширина | 1930 мм |
| высота | 2980 мм |
| вес | 4980 кг |
| серия | 1.189.1-8 |
ШЛС 30-32 Блоки лифтовой шахты средние по серии 1.189.1-8.
