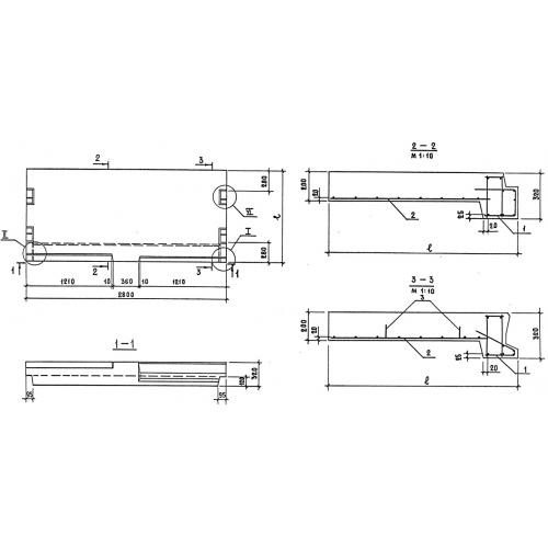
1ЛП 28.15

Чертеж изделия:
Характеристики изделия:
ПараметрЗначение
длина2800 мм
ширина1600 мм
высота320 мм
масса2330 кг
нормативный документСерия 1.152.1-8

1ЛП 28.15  Лестничные площадки плоские Серия 1.152.1-8.