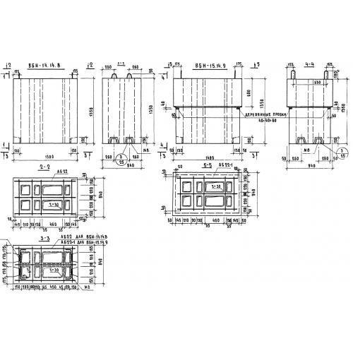
ВБН 14.14.8

Чертеж изделия:
Характеристики изделия:
ПараметрЗначение
длина1380 мм
ширина840 мм
высота1350 мм
вес1440 кг
серия1.134-3

ВБН 14.14.8 Наружные вентиляционные блоки по серии 1.134-3.