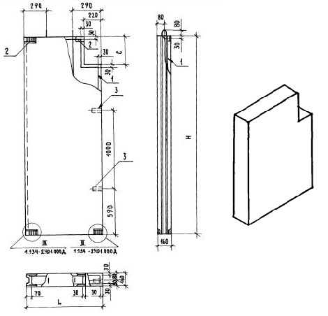
СБ-12.28.1-т-3

Чертеж изделия:
Характеристики изделия:
ПараметрЗначение
Длина1180 мм
Ширина160 мм
Высота2780 мм
Масса1250 кг
Нормативный документСерия 1.134-2

Блоки внутренних стен толщиной 16 см и вентялиционные блоки для жилых зданий высотой 1-4 этажа и общественных зданий высотой 1-3 этажа по Серии 1.134-2.

СБ-12.28.1-т-3  Стеновой блок.